Lagerhallenvermietung

Anfragen

Kaltlagerhallenvermietung

In der Sandersdorfer Straße, Ortsteil Thalheim werden zahlreiche Kaltlagerhallen in unterschiedlichen Größen modernisiert und vermietet. Die Kaltlager-Garagen befinden sich auf einem eingezäunten Gelände und besitzen jeweils ein Rolltor.

Halle 2

Halle 3

Halle 4

Halle 5

Halle 2

Diese Kaltlagerhallen sind durch das große Rolltor am Eingang, ideal für größere Fahrzeuge.

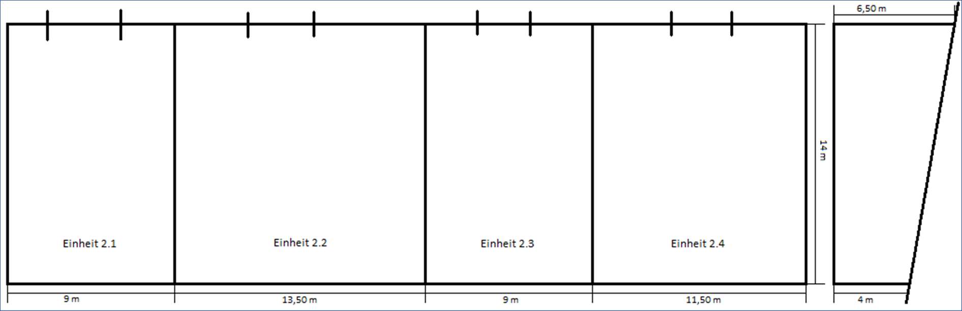
Eckpunkte Halle 2

Einheit Größe Status
2.1 ca. 126 m² Vermietet
2.2 ca. 189 m² Vermietet
2.3 ca. 126 m² Vermietet
2.4 ca. 161 m² Vermietet

 

Halle 3

Die Halle 3 bietet zahlreiche Kaltlagereinheiten. Sollte die Lagerfläche von ca. 45m² nicht ausreichen, können auf Anfrage zwei Einheiten auch als eine sogenannte Doppelgarage genutzt werden. Die Halle wurde modernisiert und die einzelnen Einheiten besitzen jeweils ein elektrisches Rolltor.

Eckpunkte Halle 3

Einheit Größe Status
1.1 ca. 45 m² Vermietet
1.2 ca. 45 m² Vermietet
1.3 ca. 45 m² Vermietet
1.4 ca. 45 m² Vermietet
1.5 ca. 45 m² Vermietet
1.6 ca. 45 m² Vermietet
1.7 ca. 45 m² Vermietet
1.8 ca. 45 m² Vermietet
1.9 ca. 45 m² Vermietet

 

Einheit Größe Status
2.1 ca. 45 m² Vermietet
2.2 ca. 45 m² Vermietet
2.3 ca. 45 m² Vermietet
2.4 ca. 45 m² Vermietet
2.5 ca. 45 m² Vermietet
2.6 ca. 45 m² Vermietet
2.7 ca. 45 m² Vermietet
2.8 ca. 45 m² Vermietet
2.9 ca. 45 m² Vermietet

 

Halle 4

Die Halle 4 bietet zahlreiche Kaltlagereinheiten. Sollte die Lagerfläche von ca. 45m² nicht ausreichen, können auf Anfrage zwei Einheiten auch als eine sogenannte Doppelgarage genutzt werden. Die Halle wurde modernisiert und die einzelnen Einheiten besitzen jeweils ein elektrisches Rolltor.

Eckpunkte Halle 4

Einheit Größe Status
4.1 ca. 45 m² Vermietet
4.2 ca. 45 m² Vermietet
4.3 ca. 45 m² Vermietet
4.4 ca. 45 m² Vermietet
4.5 ca. 45 m² Vermietet
4.6 ca. 45 m² Vermietet
4.7 ca. 45 m² Vermietet
4.8 ca. 45 m² Vermietet

 

Einheit Größe Status
4.9 ca. 45 m² Vermietet
4.10 ca. 45 m² Vermietet
4.11 ca. 45 m² Vermietet
4.12 ca. 45 m² Vermietet
4.13 ca. 45 m² Vermietet
4.14 ca. 45 m² Vermietet
4.15 ca. 45 m² Vermietet
4.16 ca. 45 m² Vermietet
4.17 ca. 45 m² Vermietet
4.18 ca. 55 m² Vermietet

 

Halle 5

Eckpunkte Halle 5

Einheit Größe Status
5.1 ca. 150 m² Vermietet
5.2 ca. 150 m² Vermietet
5.3 ca. 150 m² Vermietet
5.4 ca. 150 m² Vermietet

 

Werkhof Thalheim 

Anfrage Lagerhallenvermietung

7 + 15 =